您好,欢迎访问威海长城房地产开发有限公司官方网站!
返回首页
|
联系我们
0631-6656777
走进长城
公司简介
董事长寄语
企业文化
组织架构
公司荣誉
发展规划
政府关怀
长城大事记
地产项目
长城文华花苑
兴港府督花苑
假日海景雍华苑二期
假日海景雍华苑一期
假日海景海之缘
假日海景海之韵
假日海景公寓
假日海景海之梦
业务领域
住宅开发
商业地产经营管理
物业管理服务
中医药康养
海底温泉理疗
嘉禧康养旅居
园林种植与绿化
商务酒店
大健康产业
新闻中心
公司新闻
行业动态
视频专区
魅力银滩
银滩介绍
乳山概况
旅游风光
特产介绍
长寿之乡
联系我们
在线留言
联系方式
home
首页
>
地产项目
>
长城文华花苑
>
基本户型
最新项目
长城文华花苑
兴港府督花苑
已开发项目
假日海景雍华苑二期
假日海景雍华苑一期
假日海景海之缘
假日海景海之韵
假日海景公寓
假日海景海之梦
基本户型
项目简介
鸟瞰图
效果图
基本户型
实景样板
项目实景
地理位置
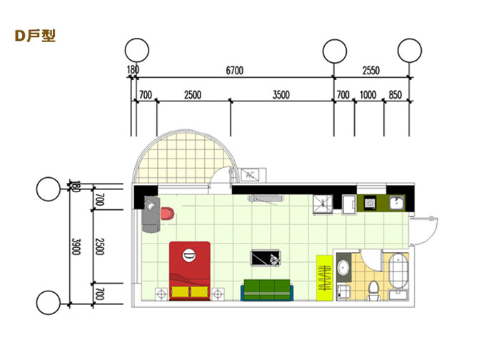
D户型(包括:8-10#楼,建筑面积:48-54m²)
回到顶部